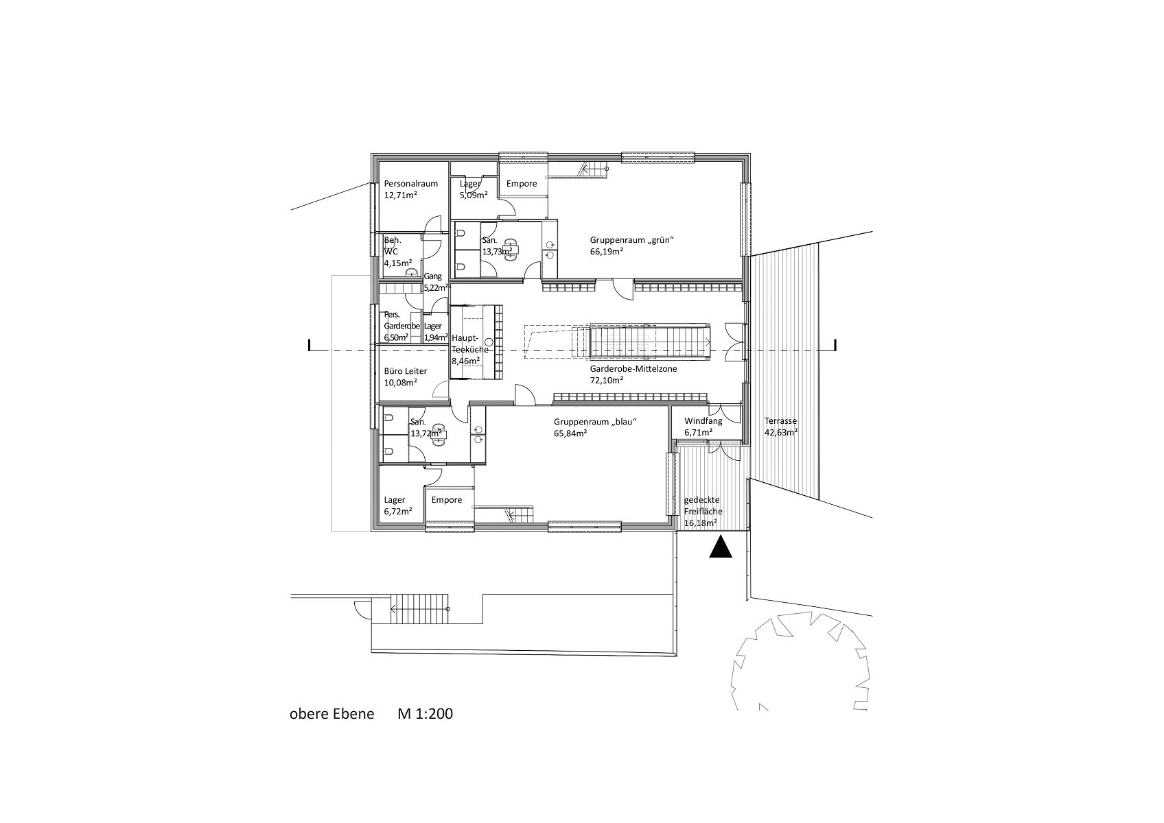
Der aus einem Wettbewerb hervorgegangene Entwurf setzt das würfelförmige Bauvolumen in die Hangkante und nimmt das Längs-Geländegefälle auf, indem der Gartenzugang um 1 Geschoß versetzt ist. Der Zugang erfolgt über eine Brücke. In den gegenüberliegenden Ecken definieren Ausnehmungen aus dem Baukörper die Ein- und Ausgänge.
Die erdberührten Bauteile sind aus Stahlbeton, alle anderen Elemente sind konsequent aus sichtbaren Brettschichtholzplatten hergestellt. Es wurden 3 gleich breite Raumfelder von je 6m – mittig eine offene Treppe -drumherum die Garderoben mit Oberlicht ausgebildet. An den nicht auf Geländehöhe liegenden Gebäudeseiten werden linear die Nutzräume angeordnet. X Large Fenster und Glastüren/Elemente lassen den umgebenden Naturraum ins Innere + optimale innere Durchlässigkeit zu.
Fotos: Architekt Christian Farcher
